设计简介
摘要
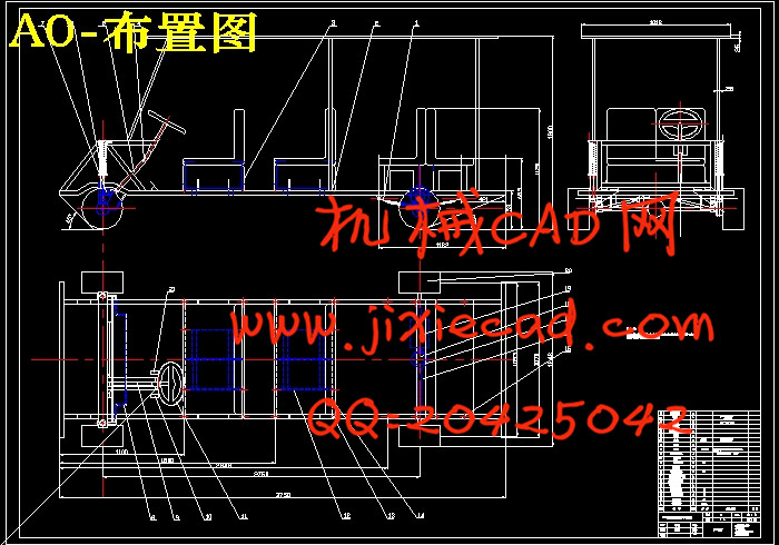
本文写的是一辆八座电动观光汽车的总体设计。首先是对大量电动汽车资料的查阅,然后从电机的选择,电池的选择着手,根据题目的要求,进行一系列的计算最后得出满足行驶要求的电机和电池。在选好电机和电池后,和设计燃油汽车的底盘一样,并同时综合电动汽车的结构特点,对汽车的传动系统,行驶系统,转向系统,制动系统进行一一分析和设计。在这为电动汽车设计底盘的过程中,要特别注意电动汽车与燃油汽车不同的地方。在我所设计的这辆低速的观光电动车上,它的传动系很简单,没有传统的离合器和变速器,也没有万向传动系统,是电机直接和主减速器用齿轮啮合直接连接,这样使得整个底盘的空间大大增加,整个底盘的布置也可以变的更加自由了。最后在这些的基础上,利用计算所得数据,对汽车进行总布置设计。
关键词:电动观光汽车 总体设计 电机 电池 底盘布置
Abstract
This article writes an eight tourism electric automobile design. First is to the massive electric automobile material consult, then from the electrical machinery choice, the battery choice begins, according to the topic request, carries on a series of computations finally to obtain satisfies the travel request the electrical machinery and the battery. After chooses the electrical machinery and the battery, is same with the design fuel oil automobile chassis, and simultaneously synthesizes the electric automobile the unique feature, to the automobile transmission system, the travel system, the steering system, the braking system carries on 11 analyses and the design. Designs the chassis in this for the electric automobile in the process, must pay attention to the electric automobile and the fuel oil automobile different place specially. Designs in me on this low speed tourism electric automobile, its power transmission is very simple, does not have the traditional coupling and the transmission gearbox, also does not have the rotary transmission system, is the electrical machinery direct and the main gear box with the gear meshing direct connection, like this causes the entire chassis the spatial big increase, the entire chassis arrangement also might change is more free. Finally in these foundations, the use computed information, carries on to the automobile always arranges the design.
Key words: tourism electric automobile design electrical machinery battery chassis arrangement
电动观光汽车的总体设计
目录
摘要1
Abstract2
第一章 绪论 3
1.1 选题的意义1.2 电动车的历史
1.3 电动车的现状以及技术水平
1.4 电动车目前所面临的主要问题
1.5 电动车的未来发展方向
第二章 本次设计题目的要求及设计参数选择与分析
2.1 设计目的和要求以及总体构想
2.2 设计参数的选择与分析
第三章 电动汽车各总成的布置和参数的确定
3.1 电动车电机的选择
3.2 电动车电池的选择
3.3 电动车前后悬架的选择
3.4 电动车车桥车架以及车轮的选择
3.5 电动车的转向系和制动系
3.6 电动车传动系的布置形式和驱动桥的选择
第四章 参数的校核
第五章 小结
致谢
参考文献
本文写的是一辆八座电动观光汽车的总体设计。首先是对大量电动汽车资料的查阅,然后从电机的选择,电池的选择着手,根据题目的要求,进行一系列的计算最后得出满足行驶要求的电机和电池。在选好电机和电池后,和设计燃油汽车的底盘一样,并同时综合电动汽车的结构特点,对汽车的传动系统,行驶系统,转向系统,制动系统进行一一分析和设计。在这为电动汽车设计底盘的过程中,要特别注意电动汽车与燃油汽车不同的地方。在我所设计的这辆低速的观光电动车上,它的传动系很简单,没有传统的离合器和变速器,也没有万向传动系统,是电机直接和主减速器用齿轮啮合直接连接,这样使得整个底盘的空间大大增加,整个底盘的布置也可以变的更加自由了。最后在这些的基础上,利用计算所得数据,对汽车进行总布置设计。
关键词:电动观光汽车 总体设计 电机 电池 底盘布置
Abstract
This article writes an eight tourism electric automobile design. First is to the massive electric automobile material consult, then from the electrical machinery choice, the battery choice begins, according to the topic request, carries on a series of computations finally to obtain satisfies the travel request the electrical machinery and the battery. After chooses the electrical machinery and the battery, is same with the design fuel oil automobile chassis, and simultaneously synthesizes the electric automobile the unique feature, to the automobile transmission system, the travel system, the steering system, the braking system carries on 11 analyses and the design. Designs the chassis in this for the electric automobile in the process, must pay attention to the electric automobile and the fuel oil automobile different place specially. Designs in me on this low speed tourism electric automobile, its power transmission is very simple, does not have the traditional coupling and the transmission gearbox, also does not have the rotary transmission system, is the electrical machinery direct and the main gear box with the gear meshing direct connection, like this causes the entire chassis the spatial big increase, the entire chassis arrangement also might change is more free. Finally in these foundations, the use computed information, carries on to the automobile always arranges the design.
Key words: tourism electric automobile design electrical machinery battery chassis arrangement
电动观光汽车的总体设计
目录
摘要1
Abstract2
第一章 绪论 3
1.1 选题的意义1.2 电动车的历史
1.3 电动车的现状以及技术水平
1.4 电动车目前所面临的主要问题
1.5 电动车的未来发展方向
第二章 本次设计题目的要求及设计参数选择与分析
2.1 设计目的和要求以及总体构想
2.2 设计参数的选择与分析
第三章 电动汽车各总成的布置和参数的确定
3.1 电动车电机的选择
3.2 电动车电池的选择
3.3 电动车前后悬架的选择
3.4 电动车车桥车架以及车轮的选择
3.5 电动车的转向系和制动系
3.6 电动车传动系的布置形式和驱动桥的选择
第四章 参数的校核
第五章 小结
致谢
参考文献



