| K015-A2 |
摘要
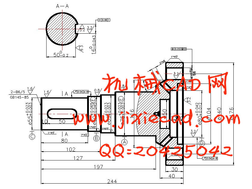
输出轴零件的主要作用是支撑零件和传递动力。这篇论文是以一典型输出轴零件为例来讲了零件的机械加工工艺规程和专用夹具设计。对于工艺规程的加工和设计,在分析了输出轴零件的作用和加工工艺性后,先稳定两种工艺方案,再甄选出最佳方案。输出轴零件的机械综合性能要求比较高哦,一般情况下是选择锻件作为毛坯。对于专用夹具的设计,这篇论文选取其中钻斜孔工序来设计专用夹具。经过工序要求进行分析后,本人呢决定采用一面两孔定位,双螺母加紧。导套我是选用可换的特殊钻套。
关键词:输出轴;工艺规程;夹具设计
Abstract
The main role is to support the part of the output shaft part, and to realize the rotary motion transmitted torque and power. In this paper, an example of a typical output shaft parts discussed the machining process planning of parts and special fixture design. For process planning, analyzing the role of the output shaft parts and processing technology, the first two processes proposed program, and then select the best solution. Comprehensive high mechanical performance requirements of the output shaft parts, usually selected as rough forgings. For fixture design, the paper select one holing process to design special fixtures. After the analysis of process requirements, using two holes positioned side, turn the platen intensify. Using a special drill guide sleeve interchangeable.
Keywords: output shaft; process planning; fixture design.
目录






